livingbetter


livingbetter louver creations

FINESHADE

 


建築用シェード
組立式 ルーバーシステム

 

パンフレット
ルーバー パンフレット

ルーバー システム プライシー保護、空調費節約

建物との相補性に優れたルーバーシステム: 建築のデザインにあわせて自由に色の指定が可能。エレガントでモダンな外観作りに最適

商業施設から上質な邸宅まで: 多種多様な面積すべてにカスタムサイズで対応

バイオクライマックデザイン建築:  室内への日差しを軽減し、かつ適度な換気で心地よい住居空間の構築。自然をうまく取入れた快適な住居環境づくりに最適。

使用目的は自由自在: 開閉式と固定式と選択自由 要望通りの開閉角度で組立可能。 開閉式で気分に合わせ景観を満喫、プライバシーの保護、夜間はシャッターの代用として防犯性の向上。 固定式では軒の延長でパーゴラとして、常時視線をさえぎりたい機械室や商業施設のパーキング壁、防犯のための非常階段部の格子として。 

 

高品質で重厚なアルミ材仕様: ルーバー、枠材はアルミ製、留金具にステンレスを使用。 錆に強く長寿命

仕様認証検査: 耐久性能は検査認証取得

環境にやさしい塗装材を使用: 耐久性にも優れた粉体塗装で美しい重厚な仕上がり。RAL色(EU色帳)から自由に色を選定。注文ごとに製造

施工、修繕: 地域により別途ご提供可能

 


縦列式
施工例

縦列式ルーバー 施工例

横列式
施工例

水平ルーバー設置

パーゴラ使い
施工例

パーゴラ使い ルーバー設置

固定式、可動式

(開閉式は手動式もしくは電動式)

(サイズによって手動式不可)オプション「ロゴ印刷」


商業施設

エレガント、恒久性、最高品質、経費削減

 

公共建築物
公共の建物ルーバー設置

公共建築物

aluminum profiles

カーディーラー/銀行

aluminum profiles

個人宅、集合住宅

エレガント、恒久性、最高品質、経費削減、

住宅

aluminum profile  movable

住宅/アパート

aluminum profiles

住宅

aluminum profiles

テクニカルデータ

テクニカルカタログ

aluminum profile technical guide

楕円形ルーバー: 高品質押出成型アルミニウム、幅 150mm, 300mm, 450mm,600mmの4サイズをご用意

固定式または可動式: 使用目的が広がる可動式には、手動式と電動式をご用意。大型のシステムには電動式は650NのDC 油圧式モーター(20㎡ごとにモーター1台)

塗装色の自由選択: ルーバー、マリオン(枠組)、固定金具などの色をRAL色帳からお好みの色で粉体塗装が可能。*オプション(標準色は陽極酸化アルミニウム色になります)

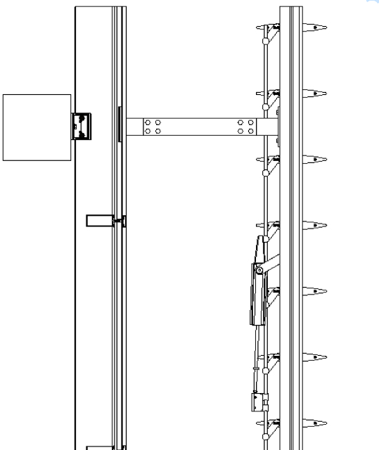
機能性に優れたマリオンデザイン: マリオン(枠組)内にT型のレールを配置し、特別な工具なしのシャフ ト装着によるルーバー固定。現場での組立作業時間を短縮します。(建物に固定するの標準的なL型固定金具は価格に含まれています。又、特殊な金具は設計図の仕様に合わせて製造が可能です。*要相談)

電動モーター
運動機構
ルーバー:開閉時
ルーバー あいている
カーテンウォールへの設置例図
カーテンウォール 設置
ルーバー断面データ
テクニカルデータ